目前,可用于超高层兴办施工的模板及围护编制众种众样,比力常睹的有爬模体系、滑模体系、顶模体系,这三种模板编制均可属于主旨筒墙体组织先行施工的工艺。
爬模体系有专业厂家坐褥,构件策画为轨范件,可厂家租赁,行使完毕后厂家可能接管。

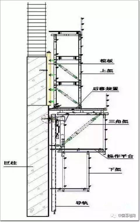
爬模的道理是,遵循墙体情景,计划机位,每个机位处筑立液压顶升体系,架体通过附墙挂座与预埋正在墙上的爬锥邻接固定,爬升时先擢升导轨,然后架体连同模板沿导轨爬升。
(3)、爬模架一次拼装后,不停到顶不落地,节俭了施工厂地,并且裁汰了模板、特殊是面板的碰伤损毁。
(5)、供应全方位的操作平台,施工单元不必为从新搭设操作平台而糟蹋质料和劳动力。

总体来说,爬模体系具有操作轻松伶俐,爬升平安安定,速率速,模板定位精度高,施工经过中无需其他辅助起重筑筑的特色。

(1)爬升前应检验混凝土墙体是否抵达爬升所需强度,受力螺栓是否拧紧,附墙挂座是否坚硬。检验架体各个构件之间是否断开邻接,检验电控体系是否寻常做事,液压体系是否平安牢靠。是否已精确爬升单位的先后递次。
(2)爬升中应待导轨擢升胜过最基层的附墙挂座,实时拆除附墙挂座及爬锥。导轨擢升到位后检验是否和附墙挂座无缝卡死。确保架体爬升一个行程后拔掉承重销,爬升到位后,插入承重销,爬升完毕后实时插入平安销。
(3)爬升完毕后,上下轭总计调到爬轨档位,封闭完全开闭,并锁定液压装配。确认单个机位的附墙撑就位,检验单个架体构件邻接、爬升单位、护栏钢管是否坚硬。
(4)模板爬升经过中,容易发作误差和挽回,为确保质料,正在寻常施工中,每天要用仪器丈量闭系部位,如涌现偏移或挽回,应实时改正。
爬模正在外洋也叫跳模,它由爬升模板、爬架(也有的爬模没有爬架)和爬升筑筑三局部构成,滑模施工工艺正在邦内始于20世纪40年代。
已通常操纵于钢筋混凝土的筒壁组织、框架组织、墙板组织。对付屹立筒壁组织和高层兴办的施工,效率尤为明显。

滑模施工技能是混凝土工程中板滞化水准高、施工速率速、园地占用少、平安功课有保护、归纳效益明显的一种施工本领。
目前常睹要紧用于烟囱、矿井、仓壁等工程施工,也可用于超高层主旨筒竖向墙体施工,

但因为其施工经过至极紧凑,正在混凝土凝聚前务必向上滑动模板,混凝土凝聚从此则无法滑动,
且因为正在混凝土凝聚前滑动模板,使混凝土组织外貌的观感和组织的笔直度担任方面有较大贫苦,

(1)滑模的滑升速率正在每次模板擢升后,应立刻检验出模混凝土有无坍落、拉裂和麻面等景色,并对滑模的擢升速率举行检讨和验证,遵循气温、混凝土凝固韶华及入仓速率等影响身分,实时调理滑模的滑升速率,涌现题目实时管制。

滑模中线担任:正在闭节部位吊挂垂线举行核心丈量担任,同时每天两次对模板边线举行丈量监控,涌现题目实时管制,确保组织物核心不爆发偏移。
滑模秤谌担任:一是操纵千斤顶的同步器举行秤谌担任,二是操纵水准管丈量,举行秤谌检验。
滑模的笔直担任:正在闭节部位吊挂垂线,丈量队每天两次对滑模举行笔直度举行观测,以确保笔直度切合策画条件。

顶模体系采用大吨位、长行程的双影响油缸行为顶升动力,可能正在确保钢平台体系的承载力的同时,裁汰支持点数目;
顶模体系的支持点数目为3~4个,配以液压电控体系,可能告终各支持点的切确同步顶升;
顶模工艺为合座擢升式,低位支持,电控液压自顶升,其合座性、平安性、施工工期方面均具有较大的上风。
顶模体系要紧由:支持体系、液压动力体系、担任体系、钢平台体系、模板体系、挂架体系六大局部构成。

(1)、支持体系包含上支持箱梁、下支持箱梁、支持钢柱,支持箱梁上筑立有可能伸缩的小牛腿。
(2)、液压动力体系包含:主油缸、牛腿伸缩小油缸,每个支持点有1个主油缸和8个小油缸。
(4)、钢平台体系:为型钢组合焊接而成的桁架式钢平台,通俗由一、二、三级桁架构成。
(5)、模板体系,由定型大钢模板构成,模板配制时应充斥研究到组织墙体的各次蜕化,拟定模板的配制计划,规则是每次变截面时,只须要取掉局部模板,不须要正在现场做大的拼装或焊接;
(6)、挂架体系,由众组可秤谌安排的挪动式挂架构成,挂架采用钢制横、竖方通及钢板网构成。

(1)、顶模体系适适用于超高层兴办主旨筒的施工,顶模体系可酿成一个封锁、平安的功课空间,模板、挂架、钢平台合座顶升,具有施工速率速、平安性高、板滞化水准高节俭劳动力等众项甜头。
(2)、与爬模体系等比拟较,顶模体系的支持点低,位于待施工楼层下2~3层,支持点部位的混凝土颠末较长韶华的养护,强度高,承载力大,平安性好,为降低主旨筒施工速率供应了保护。
(3)、顶模体系采用钢模可降低模板的周转次数,模板配制时充斥研究到组织墙体的各次蜕化,拟定模板的配制计划,规则是每次变截面时,只须要取掉局部模板,不须要正在现场做大的拼装或焊接。
(4)、与爬模相比照,顶模体系无爬升导轨,模板和脚手架直接悬挂正在钢平台上,可轻易告终墙体变截面的管制,适当超高层墙体截面众变的施工条件。

(5)、稹密的液压担任体系、电脑担任体系,使顶模体系告终了众油缸的同步顶升,具有较大的平安保护。
(6)、施工速率速,每次顶升功课用时仅为2~3个小时,模板挂架轨范化,随体系合座顶升,板滞化水准上等特色,可缔造2-3天/层的施工速率(要紧视工程量巨细而进度有所分歧)。
(7)、顶模体系钢平台合座钢度大,承载力大,平台承载力达10kN/㎡,丈量担任点可直接投测到钢平台上,施工丈量轻易。
(8)、大型布料机可直接铺排正在顶模钢平台上,质料可大吨位(由钢筋吊打扮及塔吊吊运力而确定)直接吊运睡觉到钢平台上,顶模体系可轻易施工,降低效能,裁汰塔吊吊次,是爬模等其他相似体系所无法相比的。
(1)装拆模板,务必有巩固的登高筑筑。高度胜过2m时,务必搭设脚手架。安设梁模板及梁、柱接头模板的支持架或操作平台务必支搭坚硬。
(3)正在脚手架或操作台上堆放模板时,应按轨则码放安定,防备零落并不得超载。操作东西及模板邻接件要顺手放入东西袋内,厉禁放正在脚手架或操作台上。

(4)支模务必遵从工序举行,模板没有固定前,不得举行下道工序。禁止操纵拉杆、支持上下攀爬。
(5)浇筑混凝土时,应设专人闭照模板,如涌现模板倾斜、位移、部分饱胀时,应实时接纳紧固手段。
(6)顶板拆模时,应逐块拆卸。拆下的模板,厉禁向下扔掷。如有间歇,应将已拆下的模板的配件实时运走,防备坠落伤人。